Large Ranch Style House Plans - House Plans Home Plans From Better Homes And Gardens : Some refer to ranch house plans as running a ranch others as bred or other purposes.. An open floor plan in a contemporary ranch. The ranch house plan style has a variety of definitions. Our ranch style home plan collection contains beautiful single level homes with a long street facade. Architect / designer allison ramsey architects, inc. The ranch style house plan is known for its casual style and one story floor plan.

Our selection of ranch plans incorporate the best of today's innovation, styles and features. The characteristics of these ranch homes reflect past generations' desire for a spacious home spread out over a large lot. The federal housing administration issued guidelines for home plans around this same time, giving rise to the design and popularity of ranch style homes. Amazing plans has thousands of ranch house plans and ranch home building plans to choose from. Ranch house plans are found with.

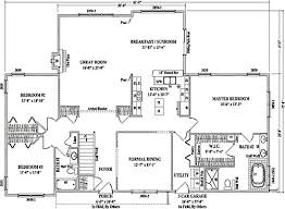
Ranch House Plans Easy To Customize From Thehousedesigners Com
Ranch House Plans Easy To Customize From Thehousedesigners Com from www.thehousedesigners.com
Whether you are looking for something small and cozy or are looking for a larger home to expand your family, we have ranch house plans ready to build or. Ranch style house plans have seen renewed interest for their informal and casual, single story open floor plans and the ability to age in place. Official house plan & blueprint site of builder magazine. The first known example of a ranch style house plan was built in san diego in the 1930s, combining the informality of a bungalow. Ranch style house plans from the 1950s. Ranch style house plans have had a large part in shaping the american architecture scene. Many of dan's ranch house plans have unique floor plans you never thought possible. The rise of the automobile necessitated an attached garage.

Ranch style house plans have seen renewed interest for their informal and casual, single story open floor plans and the ability to age in place.

Whatever you seek, the houseplans.com collection of ranch home plans is sure to have a design that works for you. Ranch style house plans from the 1950s. Large windows to allow sunlight with eaves to cast a shadow. On large suburban lots there was no need to conserve space by building up, so ranch style house plans expanded outwards on a single story, causing them to be. Most ranch homes fit up to three or. Some refer to ranch house plans as running a ranch others as bred or other purposes. Most popular square feet (large to small) square feet (small to large) recently sold newest. Our selection of ranch plans incorporate the best of today's innovation, styles and features. Ranch style homes can have just about any style of siding. Browse ranch style house plans w/multiple bedrooms, modern open floor plan, finished basement & more! Ranch style homes are generally one story low pitched homes with large picture front windows and sliding glass doors which open to the patio in the back. Ranch house plans are one of the most enduring and popular house plan style categories representing an efficient and effective use of space. Ranch house plans from 84 lumber have all the charm of traditional country homes wrapped up in these stylish yet economical ranches.

Amazing plans has thousands of ranch house plans and ranch home building plans to choose from. Most popular square feet (large to small) square feet (small to large) recently sold newest. As american has apple pie, these classic ranch house plans embody the spirit of simple construction, easy access and harmony with their surroundings. Ranch style house plans have had a large part in shaping the american architecture scene. There is often a living wing and a sleeping wing, but many recent designs.

Ranch House Plans Stock Home Plans Archival Designs Inc
Ranch House Plans Stock Home Plans Archival Designs Inc from cdn.shopify.com
The ranch style house plan is known for its casual style and one story floor plan. The federal housing administration issued guidelines for home plans around this same time, giving rise to the design and popularity of ranch style homes. Ranch style house plans from the 1950s. If you are looking for a cozy, elegant, and spacious ranch style house plan, dan sater has captured all that in his designs. Ranch style house plans emphasize openness, with few interior walls and an efficient use of space. Ranch style homes have became popular with luxury, modern, rustic types. The first known example of a ranch style house plan was built in san diego in the 1930s, combining the informality of a bungalow. Vaulted ceilings to make living spaces appear larger.

Ranch style homes are generally one story low pitched homes with large picture front windows and sliding glass doors which open to the patio in the back.

Many of dan's ranch house plans have unique floor plans you never thought possible. Also known as ramblers, ranch house plans may in fact sprawl over a large lot. Ranch style house plan designs. Ranch style house plans from the 1950s. Whatever you seek, the houseplans.com collection of ranch home plans is sure to have a design that works for you. Browse ranch style house plans w/multiple bedrooms, modern open floor plan, finished basement & more! Amazing plans has thousands of ranch house plans and ranch home building plans to choose from. Simplicity was the order of the day for ranch style home designs. Browse our collection of contemporary ranch house plans for designs that apply a clean, contemporary aesthetic to one story layouts. On large suburban lots there was no need to conserve space by building up, so ranch style house plans expanded outwards on a single story, causing them to be. Ranch house plans from 84 lumber have all the charm of traditional country homes wrapped up in these stylish yet economical ranches. Ranch designs come in every size and style including split level and raised ranch floor plans and are easily customized to your specifications. Our selection of ranch plans incorporate the best of today's innovation, styles and features.

The ranch house plan style has a variety of definitions. Ranch style house plans emphasize openness, with few interior walls and an efficient use of space. The best ranch house floor plans. Whether you are looking for something small and cozy or are looking for a larger home to expand your family, we have ranch house plans ready to build or. Our ranch style home plan collection contains beautiful single level homes with a long street facade.

Ranch Style House Plan With 4 Bed 4 Bath 3 Car Garage In 2020 Ranch Style House Plans Ranch Style Floor Plans Craftsman House Plans
Ranch Style House Plan With 4 Bed 4 Bath 3 Car Garage In 2020 Ranch Style House Plans Ranch Style Floor Plans Craftsman House Plans from i.pinimg.com
Ranch style house plans from the 1950s. Ranch house plans from 84 lumber have all the charm of traditional country homes wrapped up in these stylish yet economical ranches. An open floor plan in a contemporary ranch. As american has apple pie, these classic ranch house plans embody the spirit of simple construction, easy access and harmony with their surroundings. Many of dan's ranch house plans have unique floor plans you never thought possible. For many, a ranch style house plan is what comes to mind when you envision the classic american home. Whatever you seek, the houseplans.com collection of ranch home plans is sure to have a design that works for you. Amazing plans has thousands of ranch house plans and ranch home building plans to choose from.

Ranch style house plans from the 1950s.

Most ranch homes fit up to three or. Official house plan & blueprint site of builder magazine. Most popular square feet (large to small) square feet (small to large) recently sold newest. If you are looking for a cozy, elegant, and spacious ranch style house plan, dan sater has captured all that in his designs. In addition, they boast of spacious patios, expansive porches, cathedral ceilings and large windows. Also known as ramblers, ranch house plans may in fact sprawl over a large lot. One story ranch house plans. Ranch style house plans have seen renewed interest for their informal and casual, single story open floor plans and the ability to age in place. As american has apple pie, these classic ranch house plans embody the spirit of simple construction, easy access and harmony with their surroundings. Ranch style homes are generally one story low pitched homes with large picture front windows and sliding glass doors which open to the patio in the back. Browse ranch house plans with photos. Some refer to ranch house plans as running a ranch others as bred or other purposes. The first known example of a ranch style house plan was built in san diego in the 1930s, combining the informality of a bungalow.

By